Shallow Combined Footing Structure Design CAD Drawing
Description
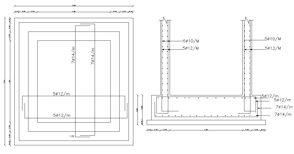
CAD drawing details of combined foundation footing structure plan and sectional design that shows structure reinforcement works details along with hook up and bent up bars design, bar dimension, footing size details, and various other blocks details download AutoCAD file.

Uploaded by:
akansha
ghatge

