Rebar Design of RCC Structural Blocks CAD Drawing Download
Description
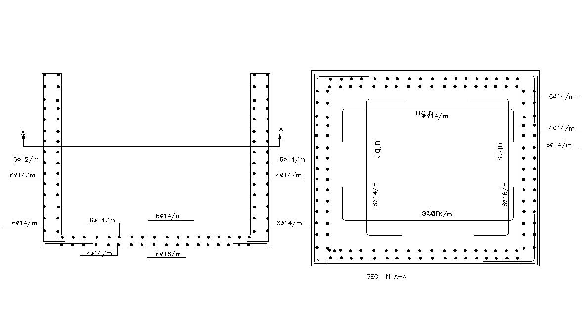
RCC Structural work details that show reinforced concrete cement (RCC) design reinforcement bars curtailment details that show main and distribution hook up and bent up bars details, bar dimensions, effective clear cover, and various other units details download AutoCAD file.

Uploaded by:
akansha
ghatge

