Residence Living Apartment Design Layout Plan Download
Description
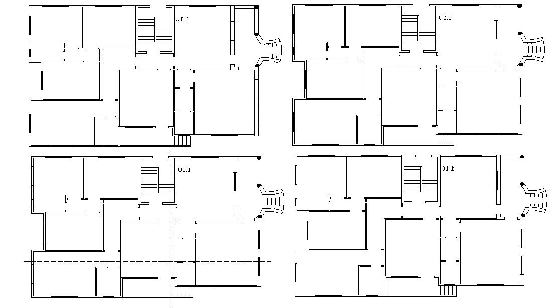
2d CAD drawing details of residential apartment architecture plan that shows apartment unit house typical floor layout details along with room design, staircase details, and various other units details download AutoCAD file.

Uploaded by:
akansha
ghatge

