Bungalow Terrace Layout AutoCAD Plan Free Download
Description
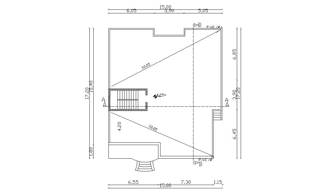
Residence bungalow terrace layout AutoCAD plan that shows terrace length width details with dimension working set, staircase, section line, and various other units details download CAD file for free.

Uploaded by:
akansha
ghatge

