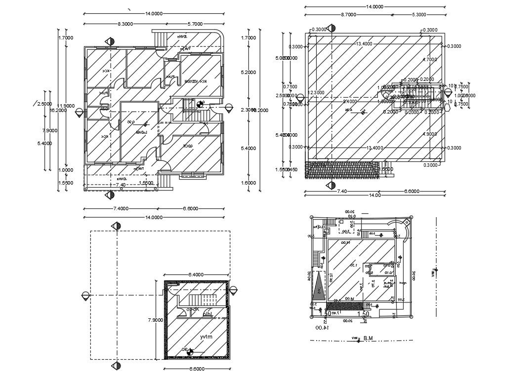
One family house line out plan, layout plan dwg file
Description
One family house line out plan, layout plan that includes a detailed view of house layout plan with dimensions and not to scale with area measurements. also includes staircases, indoor doors and window details provided in DWG format.
Uploaded by:
K.H.J
Jani

