RCC Strap Footing Structure Design 2d AutoCAD Drawing
Description
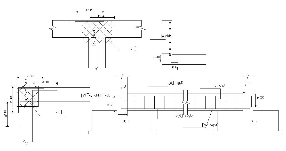
CAD drawing details of strap shallow foundation footing design that shows footing reinforcement details with main and distribution hook up and bent up bars, bar dimension, effective and clear cover, stirrups details, footing size, and various other structural blocks details download AutoCAD file.

Uploaded by:
akansha
ghatge

