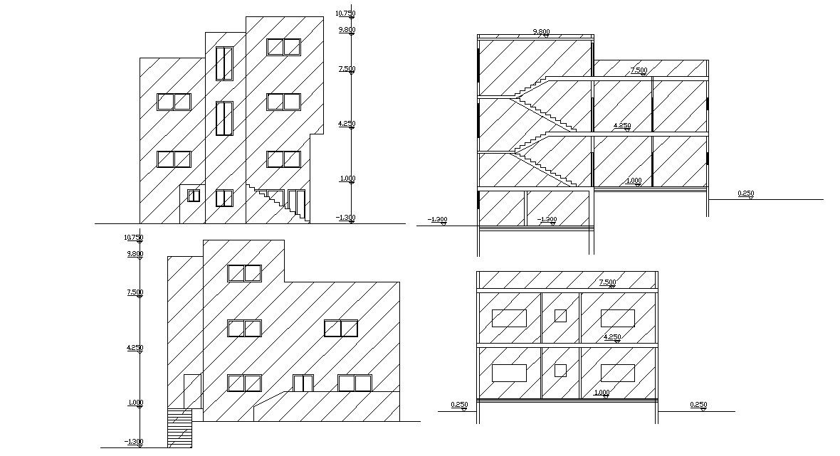
Multi storey Apartment Sectional Elevation AutoCAD drawing
Description
Front elevation and side elevation design of multi-storey apartment with apartment sectional details, floor level details, and various other blocks details download CAD drawing for free.

Uploaded by:
akansha
ghatge

