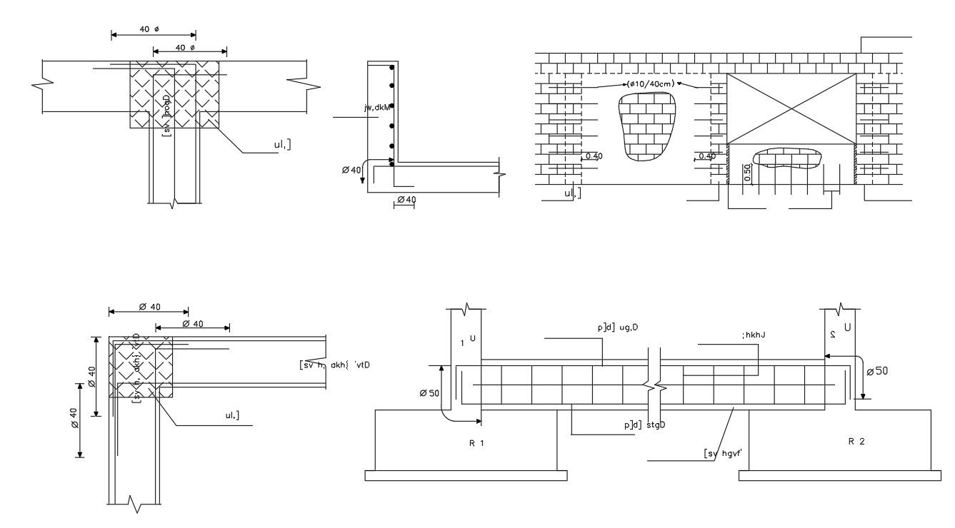
Column Footing With Brick Wall Design Free CAD Drawing

Column Footing With Brick Wall Design Free CAD Drawing
Profile

Uploaded by:

Komal

Description
2d CAD drawing of column footing reinforcement structure detail with plinth beam and brick wall construction detail. download free CAD file of construction drawing
Profile

Uploaded by:

Komal

find Latest

Related Files