Electrical Layout Plan for Residential Design in CAD File
Description
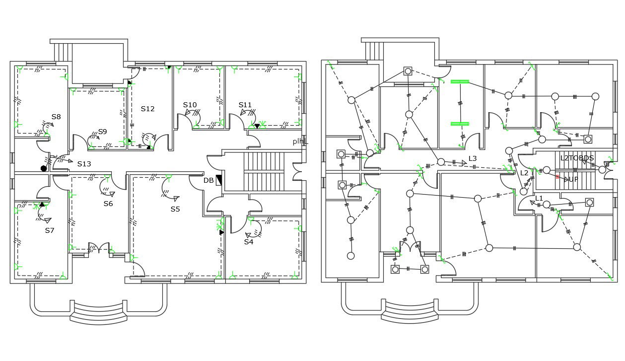
This is the drawing of bungalow planning with working drawing, bedrooms, dining area, living room, toilet, wash area, kitchen, storage area, entrance door, and window, drawing of two floors of the residential plan with electrical layout plan dwg file.
File Type:
3d max
File Size:
530 KB
Category::
Electrical
Sub Category::
Architecture Electrical Plans
type:
Gold
Uploaded by:

