Working design Bungalow footing plan CAD File

Working design Bungalow footing  plan CAD File
Profile

Uploaded by:

Poonam

Description
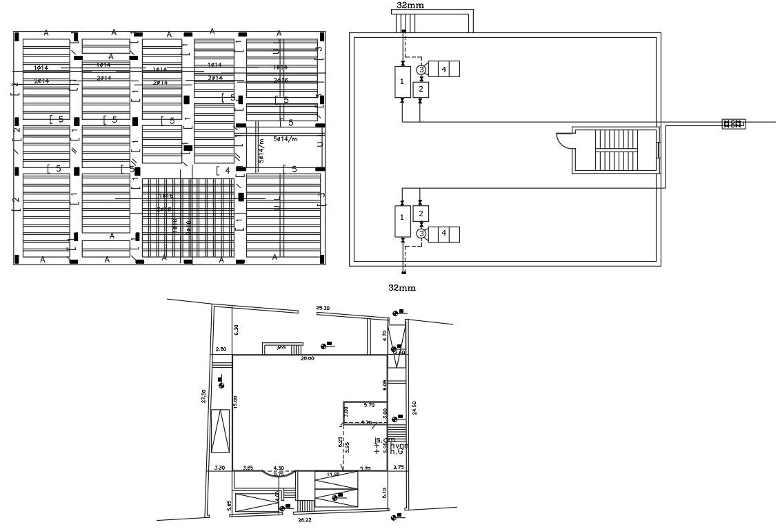
Autocad drawing of residential bungalow it include flooring layout, Colum it also includes kitchen, dining area, master bedroom, kid's bedroom, balcony, toilets, bathroom, etc.
Profile

Uploaded by:

Poonam

find Latest

Related Files

WhatsApp Chat