Working Drawing Elevation And section detail CAD drawing
Description
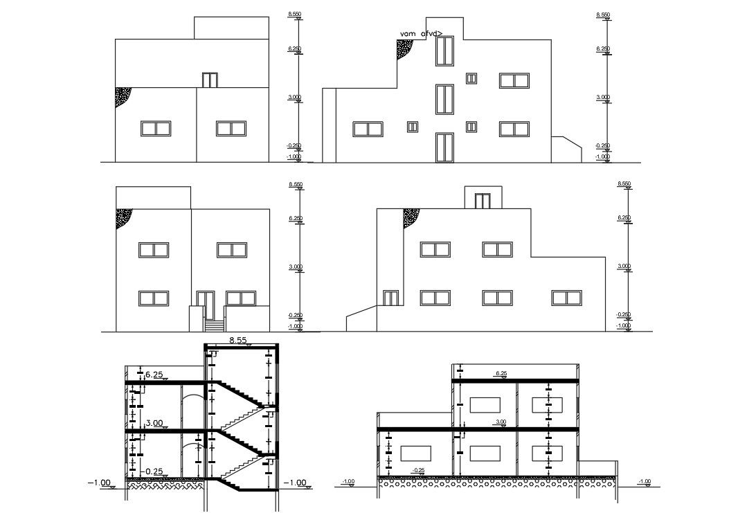
This is drawing of bungalow elevation and sectional design simple house, floor levels dimension details, doors and windows details design in elevations and section download the CAD file.
Uploaded by:

