One family house structure plan and sanitary layout dwg file
Description
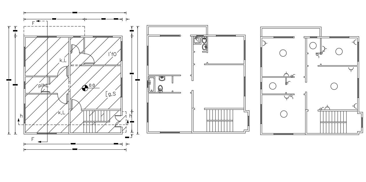
One family house structure plan and sanitary layout that includes indoor staircases, door and windows with wall measurements. sanitary layout plan and not to scale details provided in DWG file format.
Uploaded by:
K.H.J
Jani

