Houses of apartment structural layout plan and line out plan dwg file
Description
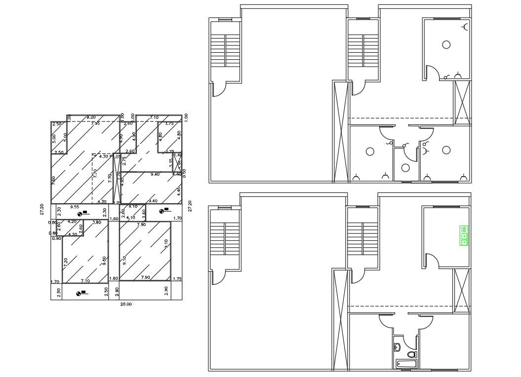
Houses of apartment structural layout plan and line out plan that includes des an indoor staircase, doors, and windows along with dimensions and not to scale area details. It also provides sanitary information in DWG file format.
Uploaded by:
K.H.J
Jani

