Working Drawing Bungalow Plan And electric Plan CAD File
Description
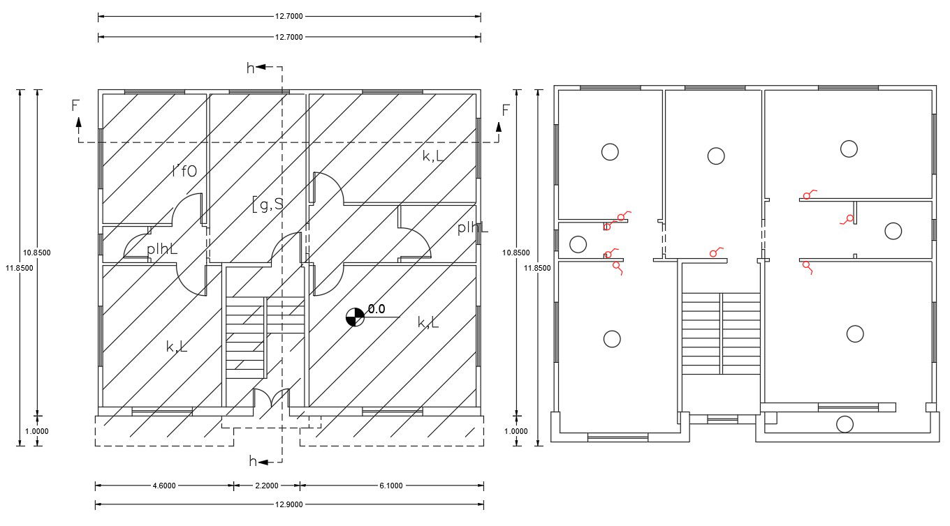
Bungalow house includes in dimension details, section line and room name kitchen, dining area, living area, balcony, bedrooms. this is an electrical plan fan point and switchboard point.
Uploaded by:

