LOGIN
HOME
CATEGORIES
UPLOAD FILE
PRICING
HOUSE PLAN
ABOUT US
CONTACT US
Working Drawing Structural Drawing CAD File
Home
Categories
Architecture
Bungalow House Design
Working Drawing Structural Drawing CAD File
Uploaded by:
Poonam
View Profile
View Profile
Description
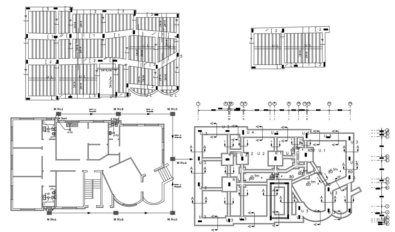
Foundation Details Working Drawing of foundation with the centerline, section line details, working dimension, structure details, columns details Autocad file.
File Type:
DWG
File Size:
94 KB
Category::
Architecture
Sub Category::
Bungalow House Design
type:
Gold
Uploaded by:
Poonam
View Profile
Download
Add to libary
find Latest
Related
Files