LOGIN
HOME
CATEGORIES
UPLOAD FILE
PRICING
HOUSE PLAN
ABOUT US
CONTACT US
House Plumbing Floor Plan DWG File
Home
Categories
Architecture
Bungalow House Design
House Plumbing Floor Plan DWG File
Uploaded by:
Poonam
View Profile
View Profile
Description
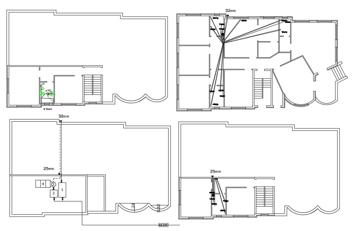
House layout plan CAD drawing includes layout details water and drainage pipeline plumbing layout plan detail, also mansion 25mm pipe and 32 pipe drawing CAD file.
File Type:
Autocad
File Size:
51 KB
Category::
Architecture
Sub Category::
Bungalow House Design
type:
Free
Uploaded by:
Poonam
View Profile
Download
Add to libary
find Latest
Related
Files