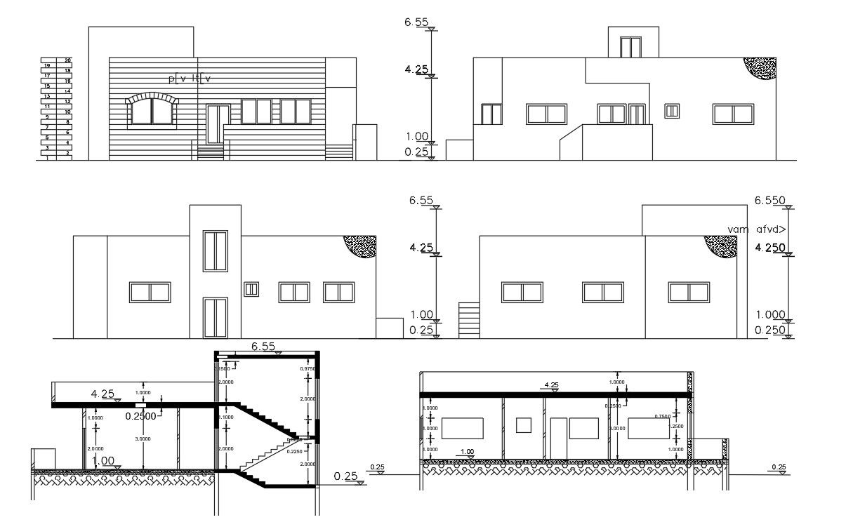
Residence House Elevation And Section Design DWG File
Description
2d CAD drawing of residence house all side elevation design shows wall design, elevation details with dimension layout, floor level, door, and window design wall section drawing in AutoCAD format.
Uploaded by:

