Electrical Layout and plumibng Plan AutoCAD Drawing
Description
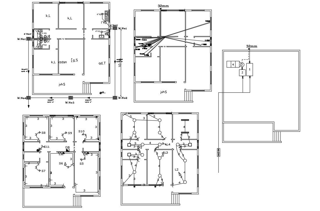
2d CAD drawing 3 bedroom house floor plan includes an electrical layout plan which shows a switchboard point, ceiling fan points, and wiring layout plan design. also has a plumbing layout plan that shows a 25 mm pipe and 32 pipes download the DWG file of house electrical and plumbing layout plan.
Uploaded by:

