Architectural Commercial Building Parking Layout Floor Plan
Description
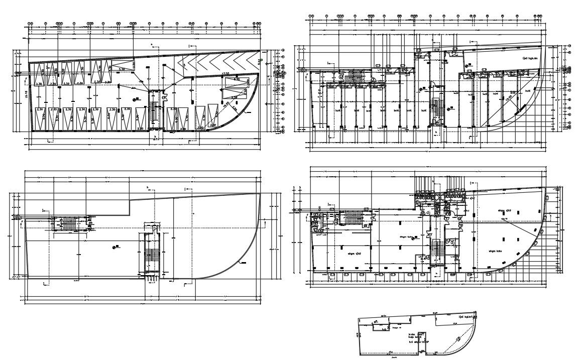
Commercial building floors plan with working drawing columns details dimension layout, parking layout in the ground floor. that show dimension working set, parking ramp design, download AutoCAD file.
Uploaded by:

