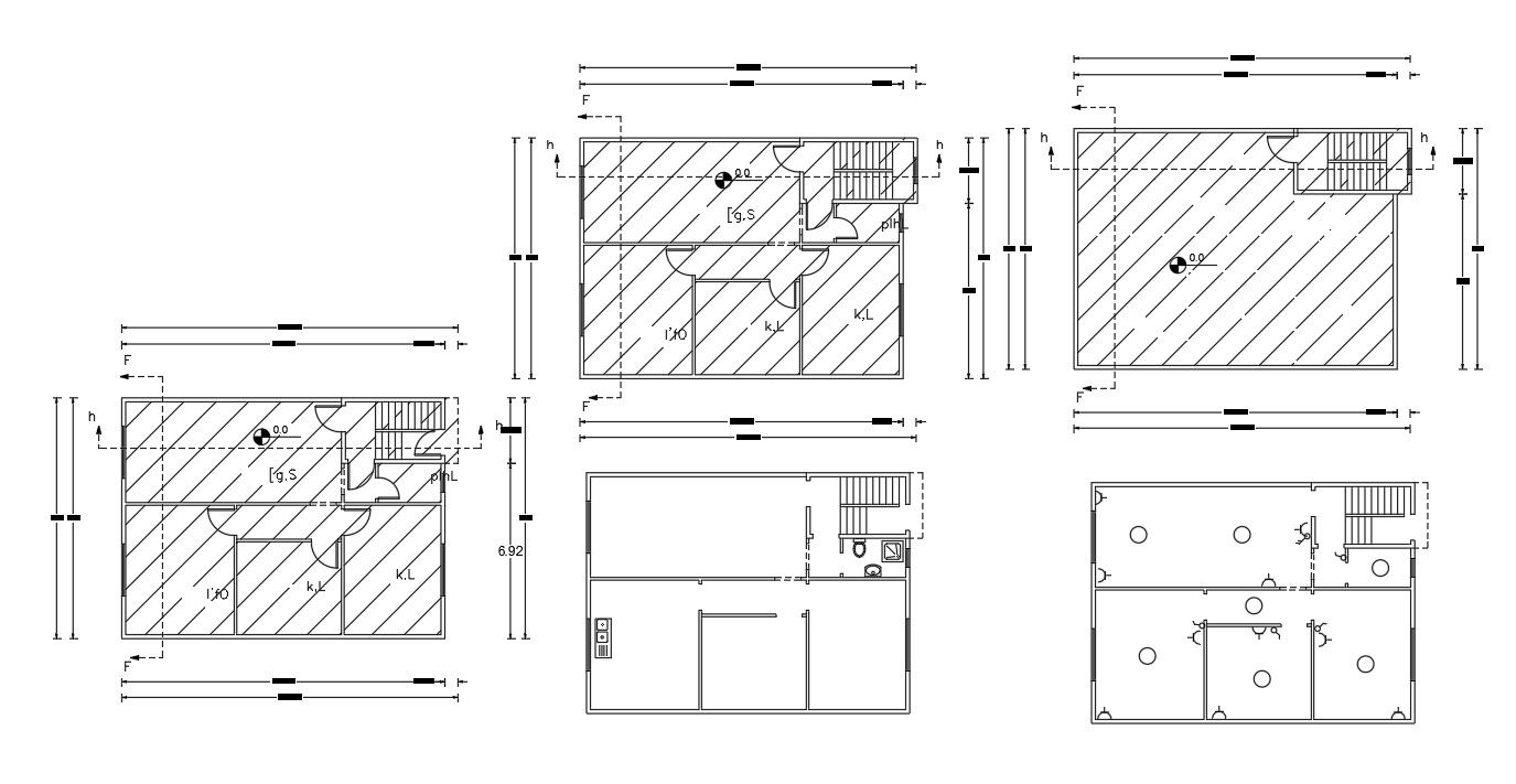
Working Drawing Bungalow Plan And Electric Floor Plan CAD File
Description
Architecture AutoCAD drawing of 2 bedroom house floor plan electrical layout plan drawing includes fan point, switch point, and floor plan also has doors and window details with dimension detail, free download this drawing and use in a related project DWG file.
Uploaded by:

