Structure Foundation Floor Plan AutoCAD File

Structure Foundation Floor Plan AutoCAD File
Profile

Uploaded by:

Poonam

Description
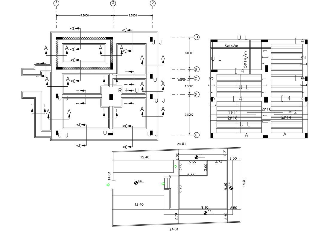
A drawing plan provides the detail of footing, reinforced bar, centerline with dimension, section line, stirrup detail, and column and beam. download the foundation DWG file.
Profile

Uploaded by:

Poonam

find Latest

Related Files

WhatsApp Chat