Bungalow Electrical And Plumbing Layout AutoCAD Format
Description
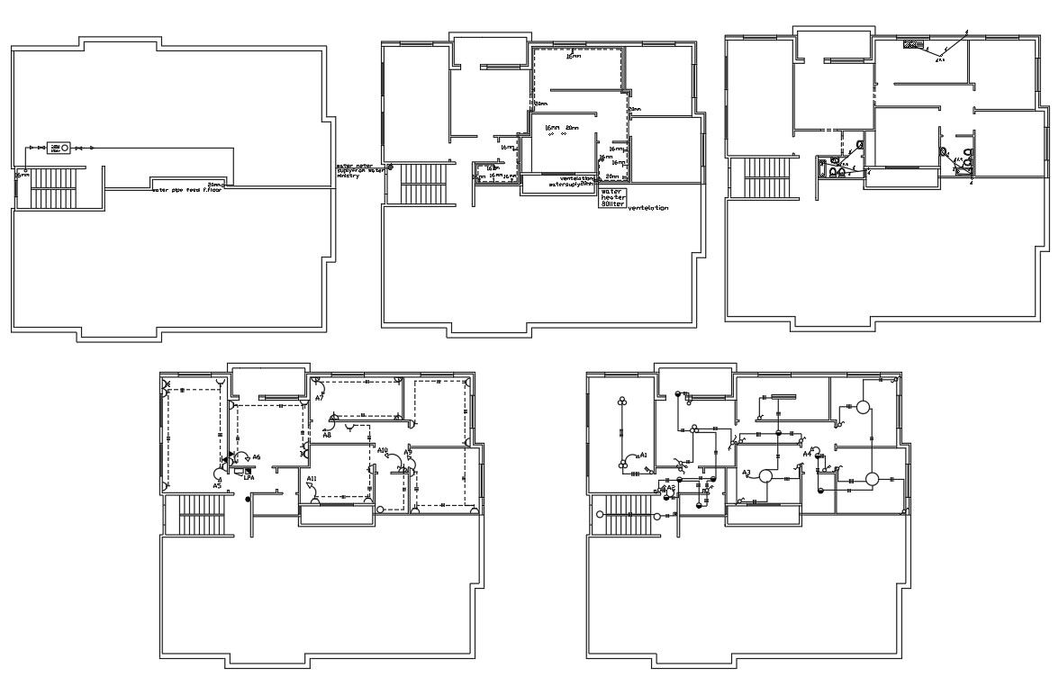
The architecture elevation and plumbing layout give the details of lighting layout, switchboards, plug point, fan point, and also sewage line, water pipe connect to a manhole and public sewer system. download AutoCAD format.
Uploaded by:

