Bungalow Structural Foundation Floor Plan CAD File
Description
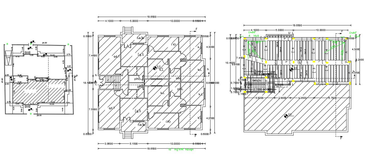
The architecture drawing layout provides details of reinforced bar, stirrup bar details, section line with dimension, hatching, column and beam details, and other details. download the AutoCAD file.
Uploaded by:
