Building Elevations Layout AutoCAD File

Building Elevations Layout AutoCAD File
Profile

Uploaded by:

Poonam

Description
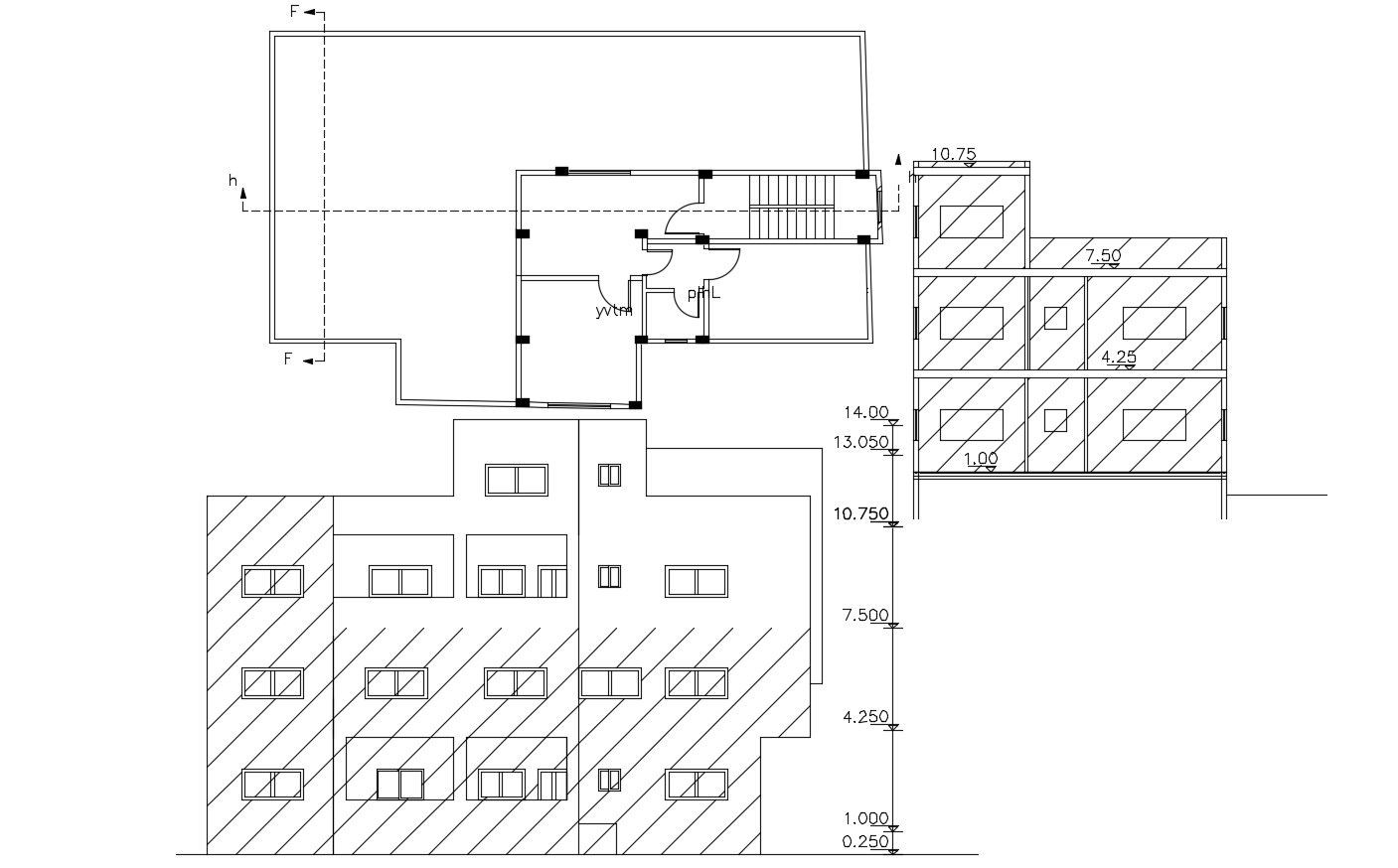
A drawing of elevation includes window and door details, floor level, plinth level, dimension details, hatching with elevation height 14.00 meter. download DWG file AutoCAD format.
Profile

Uploaded by:

Poonam

find Latest

Related Files

WhatsApp Chat