Bungalow House Ground Floor And First Floor Plan CAD File
Description
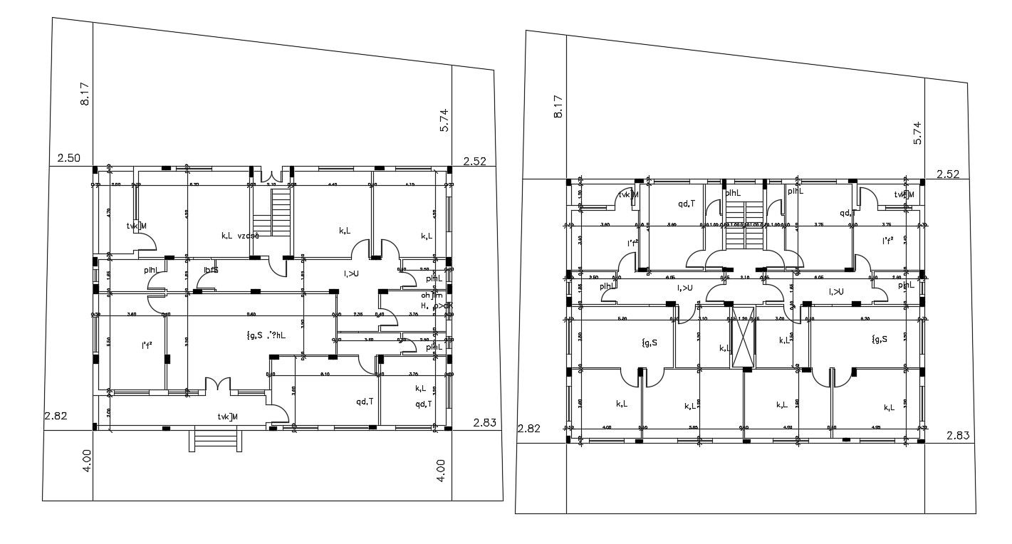
2d drawing floor plan provides living area, drawing room, toilets, washroom, balcony, bedrooms, and garden give dimension details. this drawing download bungalow house floor plan AutoCAD file.
Uploaded by:

