Working Drawing Floor Plan and Foundation Plan CAD File
Description
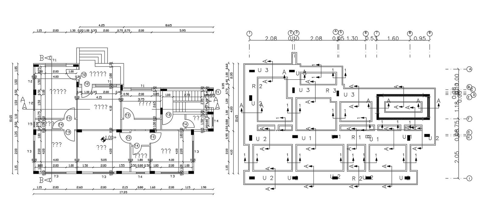
2d drawing floor plan the detail of foundation provide section line, stirrup detail, reinforced bars, centerline, column details with dimension details also has door and windows details ground floor plan. download the DWG AutoCAD format.
Uploaded by:

