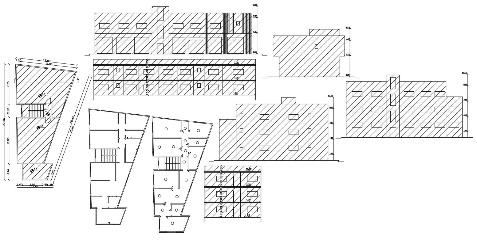
Commercial Elevation And Floor Plan With Dimension
Description
2d drawing electrical layout includes plug points, switchboards, and fan points. elevation layout with floor level, plinth level, door and windows, hight is 12.25 meter. download drawing AutoCAD format.
Uploaded by:

