LOGIN
HOME
CATEGORIES
UPLOAD FILE
PRICING
HOUSE PLAN
ABOUT US
CONTACT US
Parking Layout AutoCAD Drawing File
Home
Categories
Architecture
Bungalow House Design
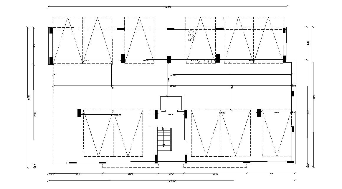
Parking Layout AutoCAD Drawing File
Uploaded by:
Poonam
View Profile
View Profile
Description
2d drawing layout which provide parking details, column details, dimension details and other details. download CAD file.
File Type:
DWG
File Size:
395 KB
Category::
Architecture
Sub Category::
Bungalow House Design
type:
Free
Uploaded by:
Poonam
View Profile
Download
Add to libary
find Latest
Related
Files