Residential House Section Layout CAD File

Residential House Section Layout CAD File
Profile

Uploaded by:

Poonam

Description
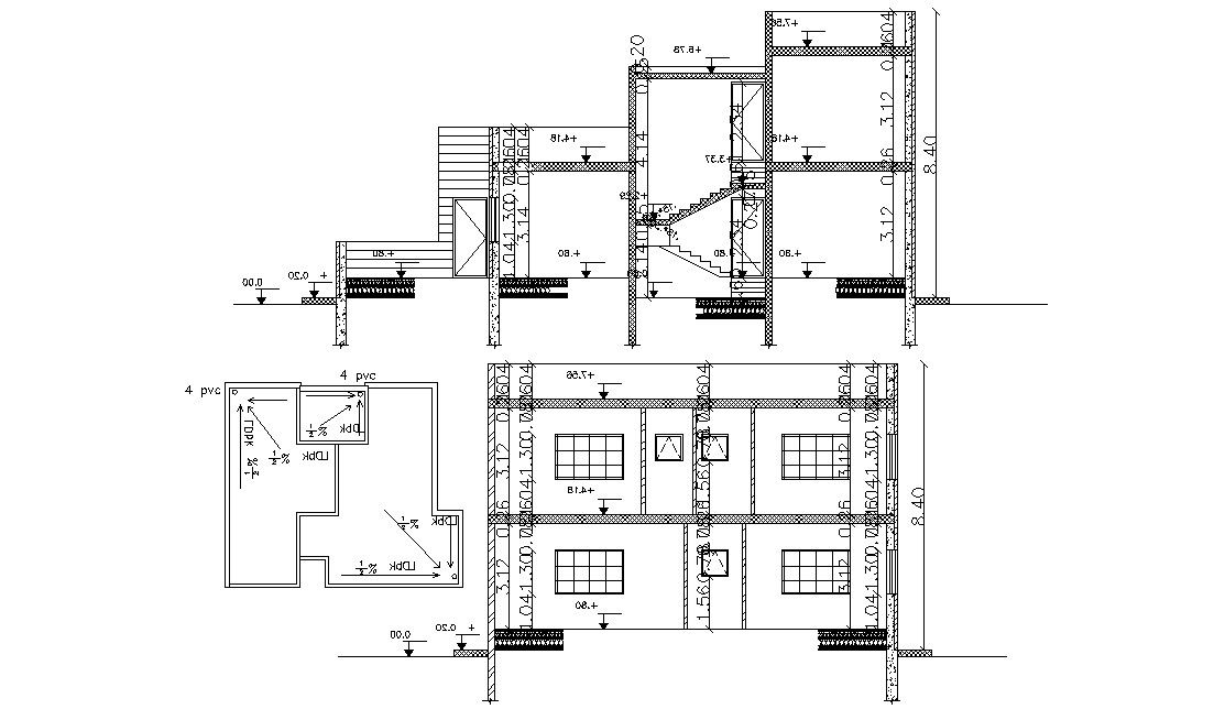
The drawing section layout include sill level, plinth level, floor level, slab details, dimension details, stair details, doors and windows details. download AutoCAD file.
Profile

Uploaded by:

Poonam

find Latest

Related Files