LOGIN
HOME
CATEGORIES
UPLOAD FILE
PRICING
HOUSE PLAN
ABOUT US
CONTACT US
Working Drawing Foundation Layout DWG File
Home
Categories
Structure
Footing Detail
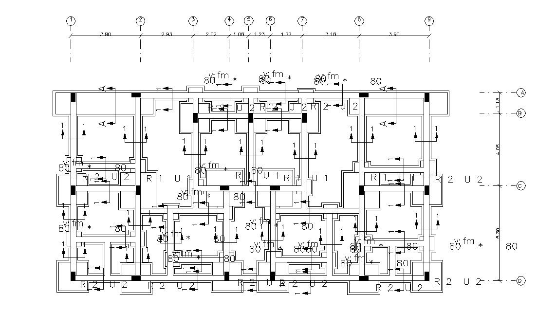
Working Drawing Foundation Layout DWG File
Uploaded by:
Poonam
View Profile
View Profile
Description
The architecture foundation layout include section line, centerline, column details with dimension details. download AutoCAD file.
File Type:
DWG
File Size:
106 KB
Category::
Structure
Sub Category::
Footing Detail
type:
Gold
Uploaded by:
Poonam
View Profile
Download
Add to libary
find Latest
Related
Files