Drawing room furniture design
Description
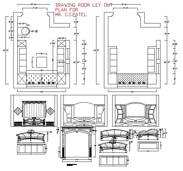
Drawing room design in sofa set & T.V unit & Elevation furniture section detail & dimension include.
File Type:
DWG
File Size:
538 KB
Category::
Interior Design
Sub Category::
Living Room Interior Design
type:
Gold

Uploaded by:
Jafania
Waxy

