LOGIN
HOME
CATEGORIES
UPLOAD FILE
PRICING
HOUSE PLAN
ABOUT US
CONTACT US
Restaurant lay-out detail
Home
Categories
Architecture
Hotels and Restaurants
Restaurant lay-out detail
Uploaded by:
Jafania
Waxy
View Profile
View Profile
Description
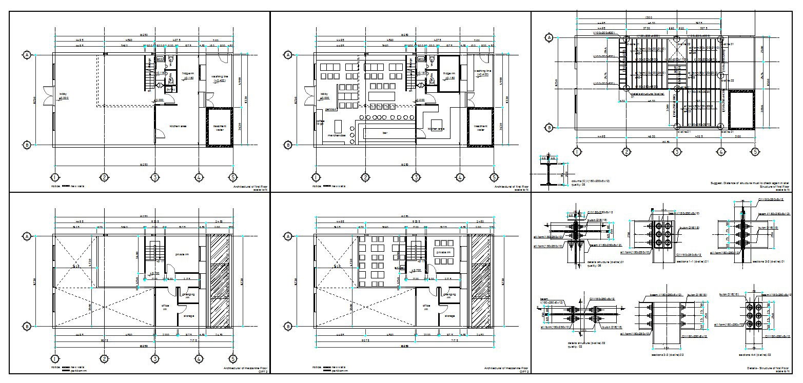
This Restaurant design in washing line, fridge room, treatment room, pulley , storage, kitchen area, partition, lobby, structure detail, changing room, etc detail
File Type:
DWG
File Size:
702 KB
Category::
Architecture
Sub Category::
Hotels and Restaurants
type:
Gold
Uploaded by:
Jafania
Waxy
View Profile
Download
Add to libary
find Latest
Related
Files