LOGIN
HOME
CATEGORIES
UPLOAD FILE
PRICING
HOUSE PLAN
ABOUT US
CONTACT US
Bed room Design
Home
Categories
Interior Design
Bedroom Interiors
Bed room Design
Uploaded by:
Jafania
Waxy
View Profile
View Profile
Description
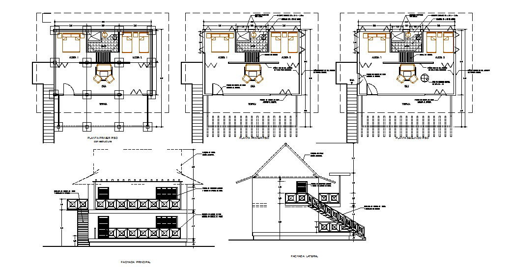
Single bed room, & master bed room design & all room set in furniture design. plan lay-out & elevation design.
File Type:
DWG
File Size:
111 KB
Category::
Interior Design
Sub Category::
Bedroom Interiors
type:
Gold
Uploaded by:
Jafania
Waxy
View Profile
Download
Add to libary
find Latest
Related
Files