40'x60' 2 BHK West Facing House Plan As Per Vastu Shastra, Autocad DWG file Details
Description
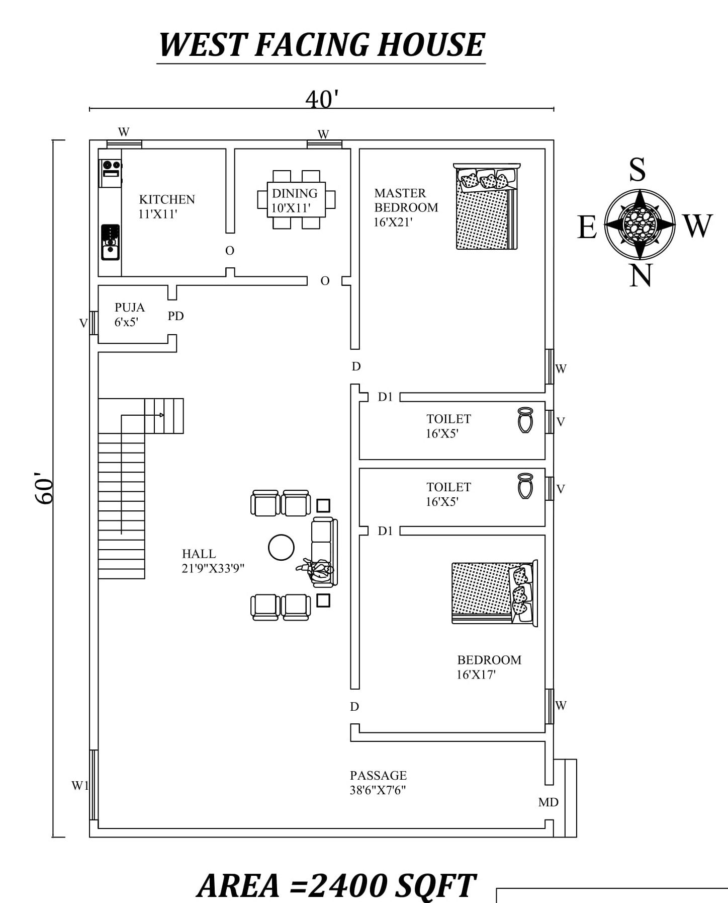
Autocad drawing file of this plan contains 40'x60' 2 BHK West Facing House Plan As Per Vastu Shastra. The Buildup Area of this house is 2400 Sqft. The master bedroom is in the southwest direction with the attached toilet is in the west direction, The children's bedroom is in the northeast direction with the attached toilet is in the west direction, Kitchen is in the southeast direction. The dining near the kitchen is in the south direction. Hall is in the northeast direction. The staircase is in the east direction, inside the house. Download Autocad DWG and PDF file.

Uploaded by:
AS
SETHUPATHI

