30' X 40' Feet 2 BHK Modern Bungalow Floor Plan (1200 SQ FT)
Description
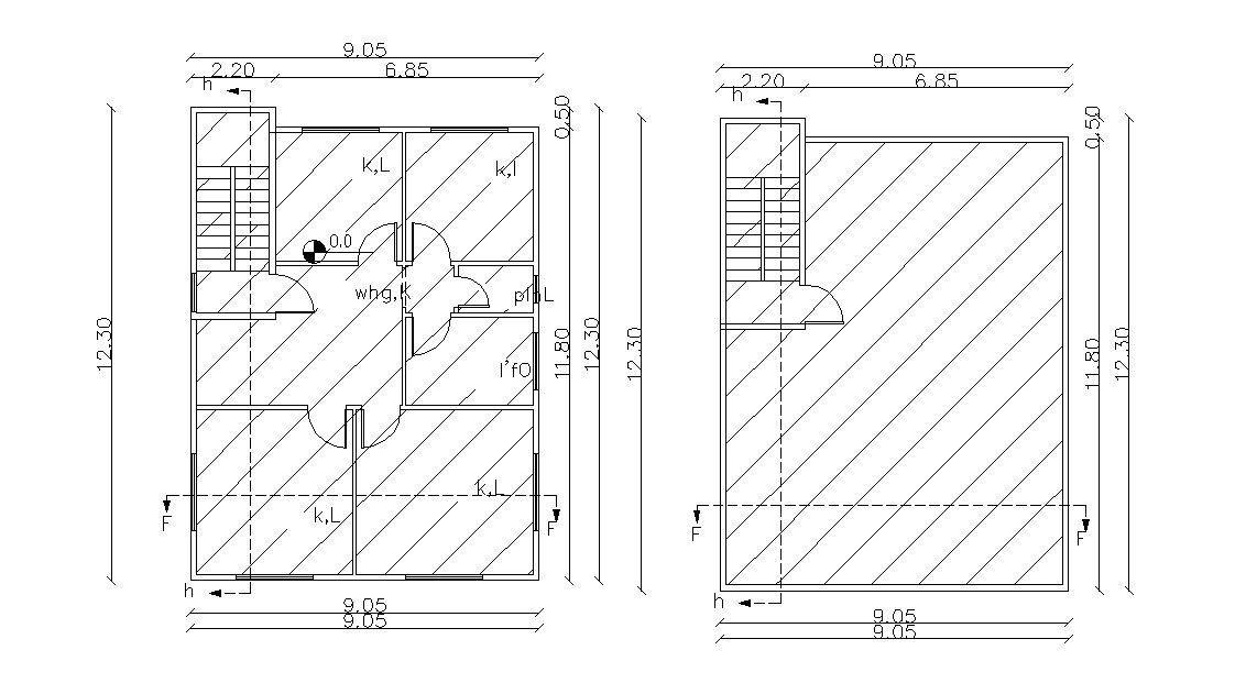
400 Square Yards Residential duplex bungalow floor layout architecture plan that shows bugalow floor level details along with dimension working set, terrace layout plan, staircase units, section line, and various other units details download AutoCAD drawing.

Uploaded by:
akansha
ghatge

