Column Marking Layout Plan CAD Drawing
Description
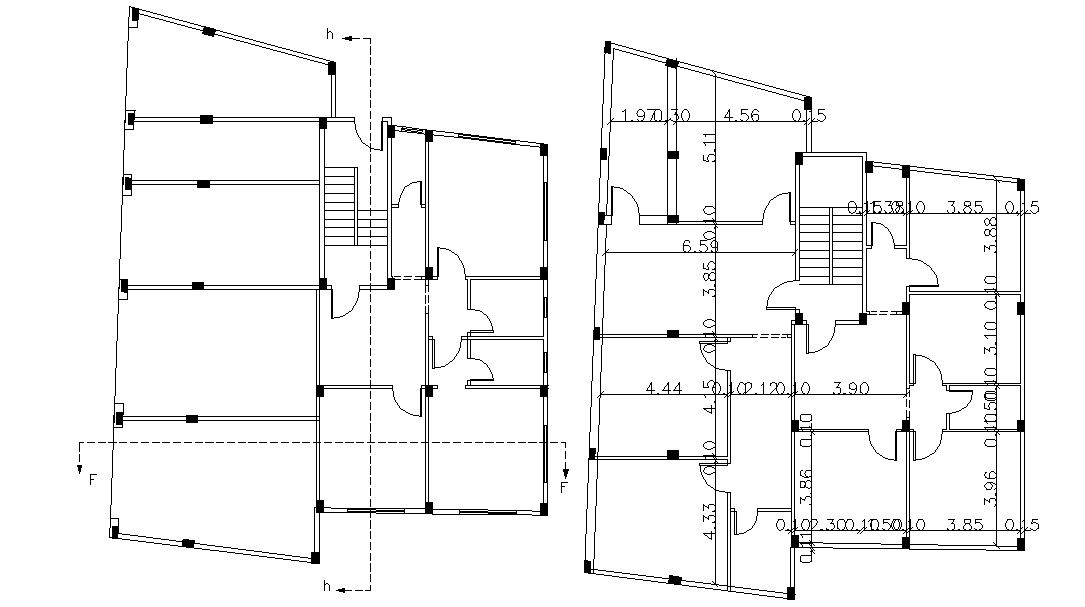
Building construction Column layout drawing that shows column arrangement design plan details fo building construction, along with column size, column spacing, dimension working set, section line, and various other structural blocks detailing download AutoCAD file for detailed working drawing.

Uploaded by:
akansha
ghatge

