Column and RCC Slab Structure Design Detailed CAD Drawing
Description
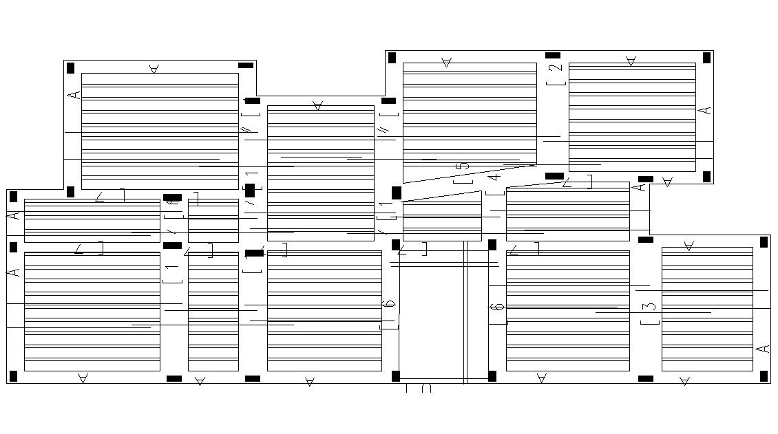
Reinforced Concrete cement (RCC) Slab and Column structure design Presented CAD drawing that shows Slab structure steelwork details that include reinforcement bars details in tension and compression zone along with main and distribution hook up and bent up bars details. Download CAD Drawing of RCC structural work.
File Type:
DWG
File Size:
375 KB
Category::
Construction
Sub Category::
Reinforced Cement Concrete Details
type:
Gold

Uploaded by:
akansha
ghatge

