2700 Square Feet Apartment Layout AutoCAD Plan
Description
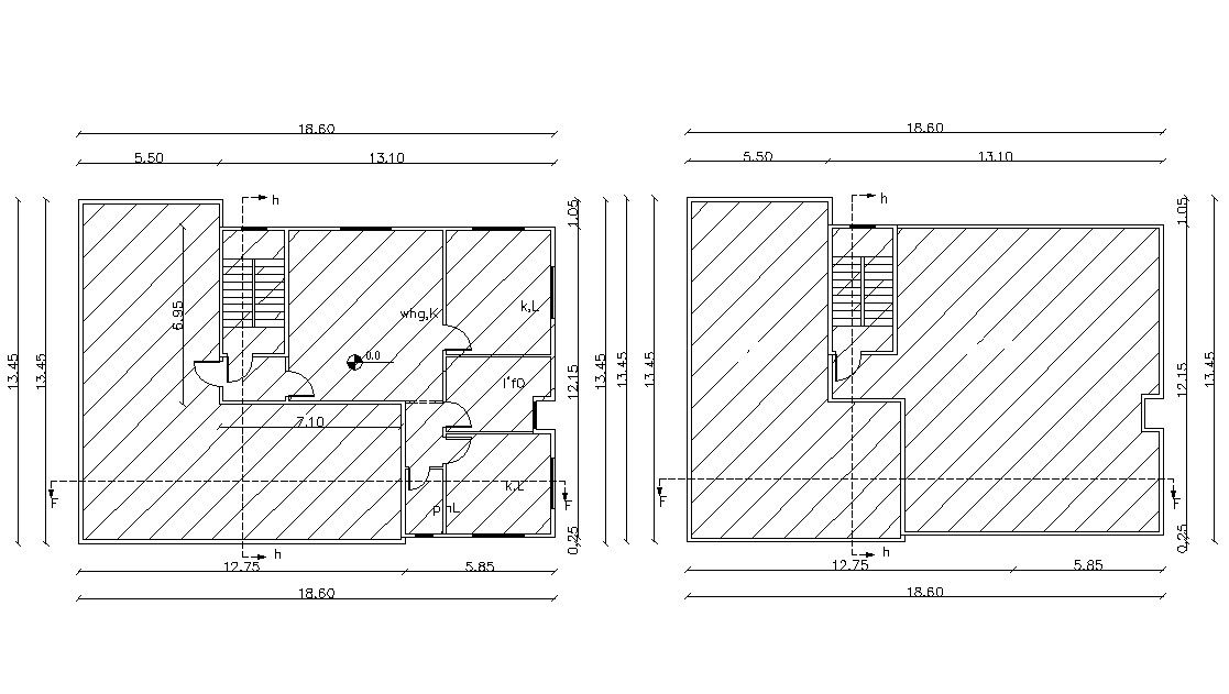
60' X 45' FT Residence Living apartment Floor layout plan that shows apartment floor leveling details with staircase, dimension working set, room design, section line, door window annotation, and various other works detailing. Download Floor layout plan for 900 Square Yards Residence apartment.

Uploaded by:
akansha
ghatge

