2d Living Apartment Design Architecture CAD Plan
Description
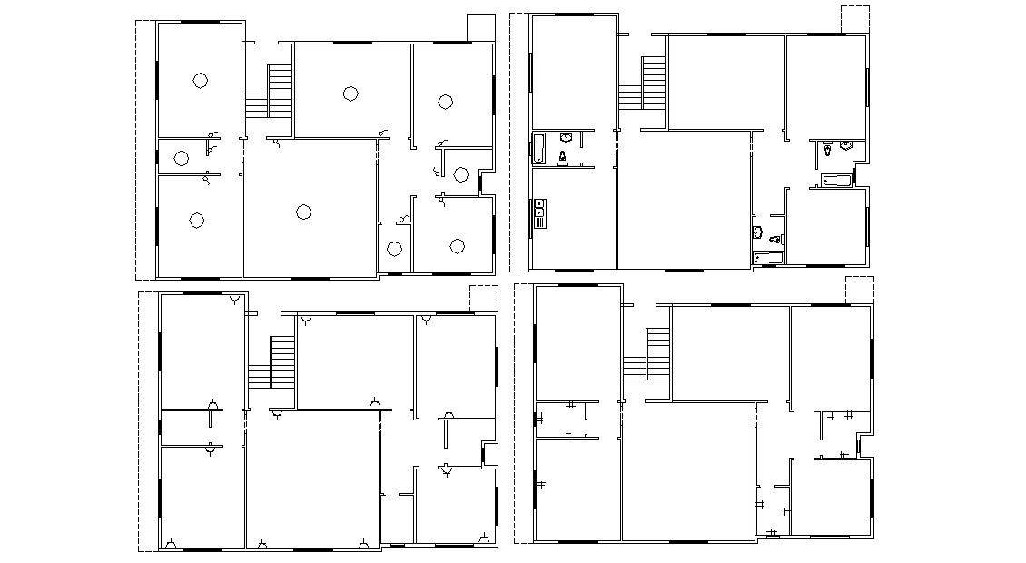
Residence Living Apartment Design Layout architecture plan that shows apartment plumbing layout units details along with apartment rooms details, staircase, and various other works detailing.Download AutoCAD Drawing of apartment layout plan for free.

Uploaded by:
akansha
ghatge
