Apartment Floor Layout CAD Drawing Plan
Description
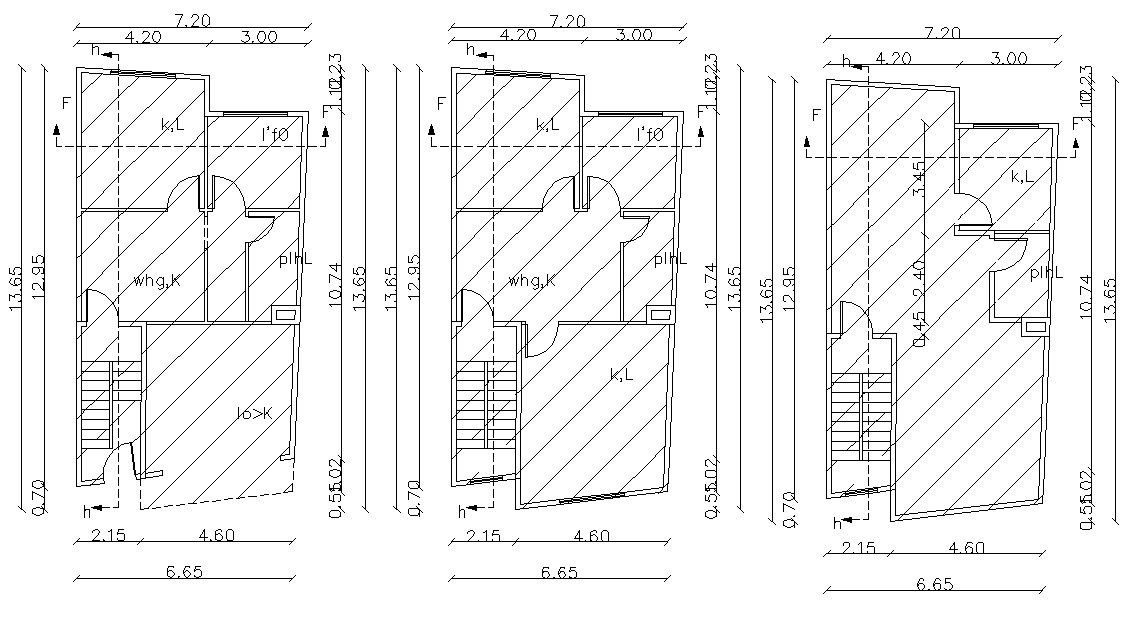
2d CAD Drawing details of residence living apartment all floor layout CAD plan that shows the apartment room details along with floor hatching details, dimension working set, section line, staircase, door window annotation, and various other works details. Download Architecture plan of the apartment CAD drawing.

Uploaded by:
akansha
ghatge

