Home Electrical Plan Design AutoCAD File
Description
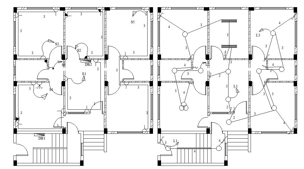
Residential bungalow home electrical installation layout plan that shows bungalow each floor wiring details along with electrical wire units, circuits blocks, fuse units, switch panel units, and various other electrical unit details. Download the Home wiring layout plan presented in AutoCAD drawing.

Uploaded by:
akansha
ghatge
