75' X 35' FT Residence Apartment Attached House Plan
Description
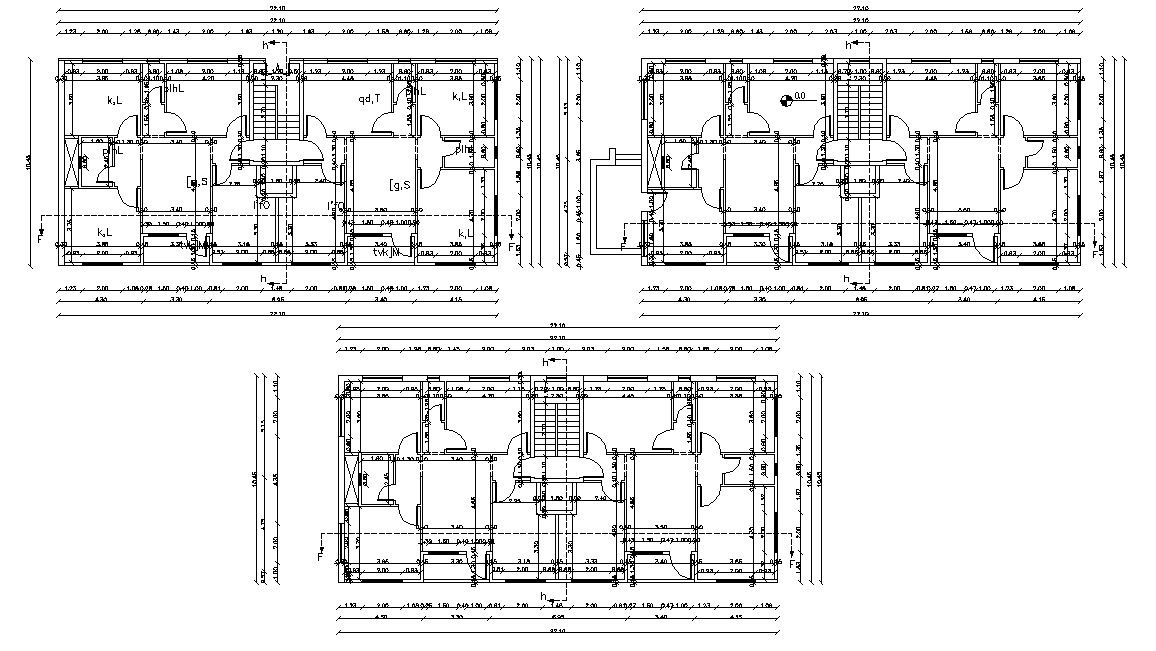
875 Square Yards Size Residential Living Apartment Design working plan that shows attached apartment design for each floor with dimension working set, staircase, elevator service area, room dimension, section line, and various other amenities details. Download architecture floor plan of 2625 sq ft apartment.

Uploaded by:
akansha
ghatge

