Living Apartment Each Floor Layout CAD Plan
Description
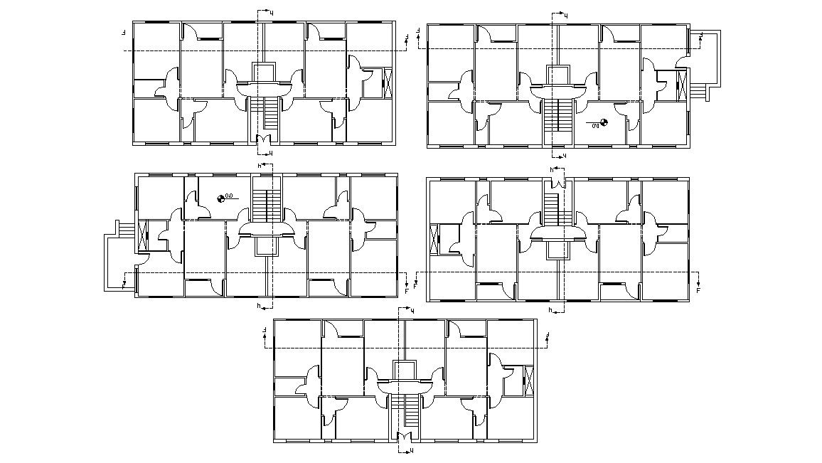
2d CAD drawing details of residential apartment design layout plan that shows each apartment attached plan with the room design, staircase units, section line, elevator service room, and building various other amenities details. Download the AutoCAD drawing plan of residence apartment.

Uploaded by:
akansha
ghatge

