Column Pile Footing Design RCC Work DWG File
Description
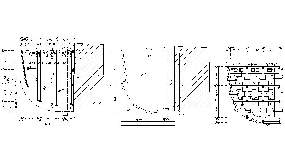
RCC Column structural work details that show column pile footing design that shows column spacing, column joints, rectangular and square footing design, footing size, long-short column structure, column centerline, and various other structural work details. Download RCC column structural work design CAD file.

Uploaded by:
akansha
ghatge

