Building Elevation and Sectional Design CAD File
Description
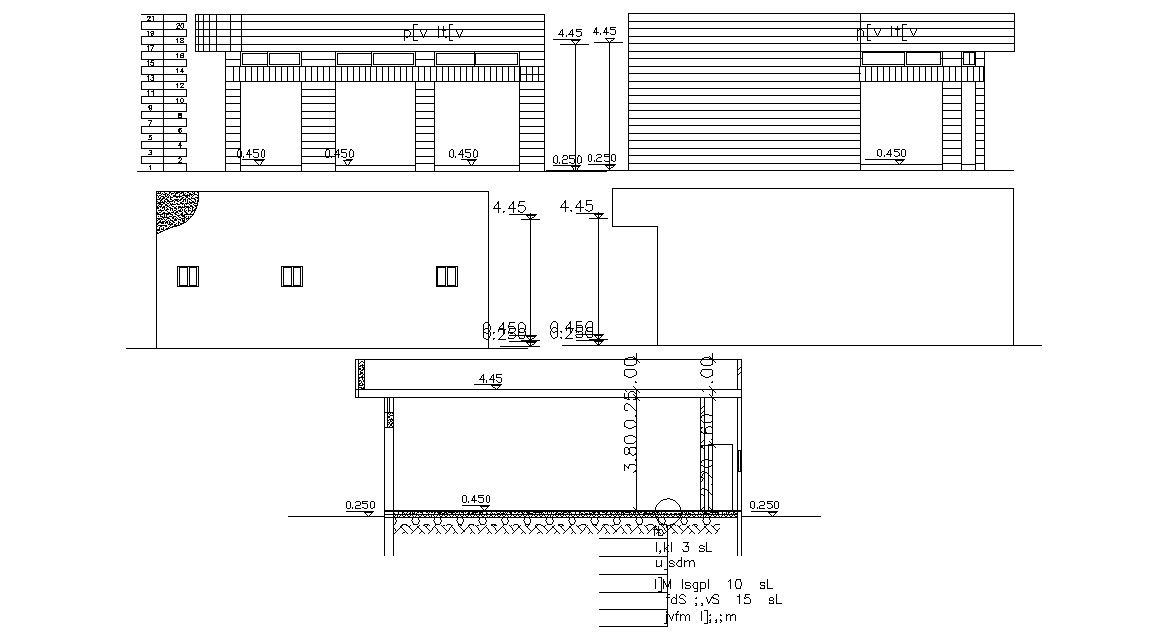
Building design different sides of elevation and sectional view that shows building floor level details, leveling work, building front elevation, sides elevation, rear elevation, and various other units details.Download CAD file of building drawing for free.

Uploaded by:
akansha
ghatge

