60X65 feet Spacious 3BHK North facing House Plan AutoCAD file
Description
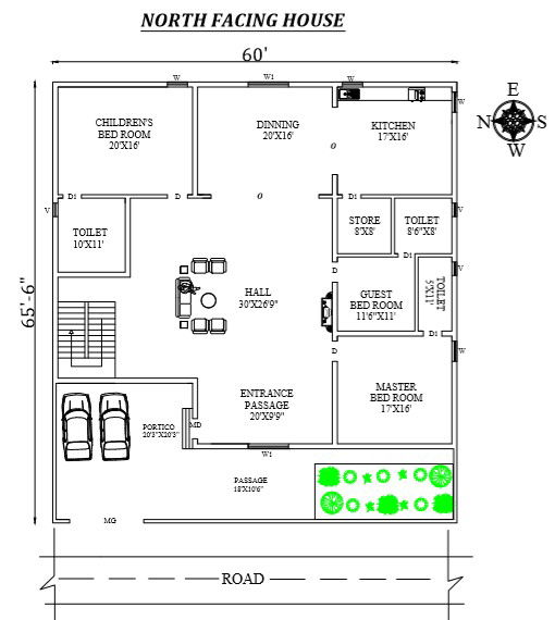
60'x65'6" Spacious 3BHK North facing House Plan. The total buildup area of this house is 3930 sqft. This shows kitchen, storeroom, Hall, master bedroom with attached toilet. kid's bedroom with attached toilet in the north direction. The guest bedroom the south with the attached toilet is in the South direction. staircase in side of the house. Portico with northwest direction of the house. Download AutoCAD Drawing file.

Uploaded by:
AS
SETHUPATHI

