Section and Elevation Design of Residence House
Description
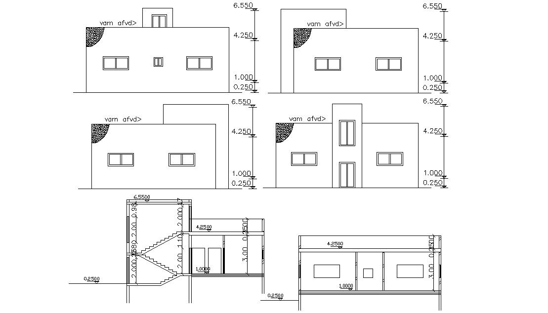
2d Residential Bungalow architecture elevation and sectional drawing that shows bungalow all sides of elevation design like front elevation, sides elevation and rear elevation along with bungalow different sectional details, floor leveling, and various other works details. Download CAD presented file for free.

Uploaded by:
akansha
ghatge

