Column Footing and Slab Reinforcement Work Design
Description
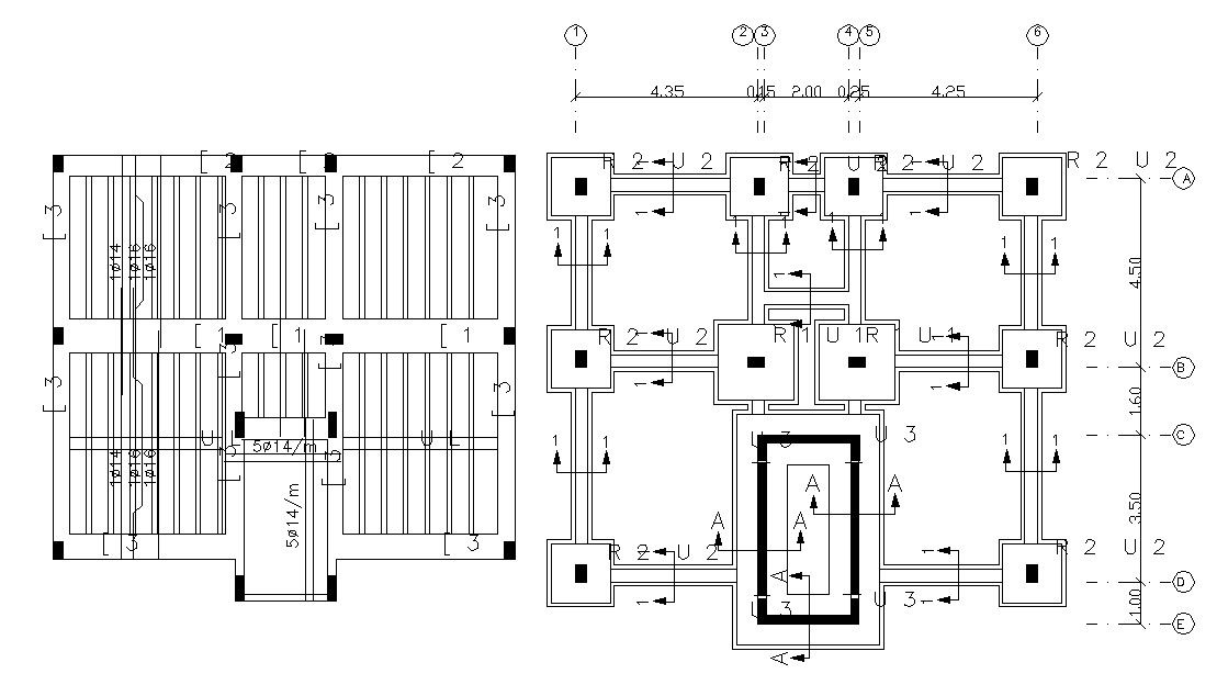
Reinforced Concrete Cement (RCC) Steel structure design that shows column pile footing design structural plan that shows column spacing, square and rectangular footing design, centerline details, dimension set along with slab structure reinforcement steelwork details. Download Structural works detailed CAD Drawing.
File Type:
DWG
File Size:
319 KB
Category::
Construction
Sub Category::
Reinforced Cement Concrete Details
type:
Gold

Uploaded by:
akansha
ghatge

