35' X 50' Feet Single Storey House Plan
Description
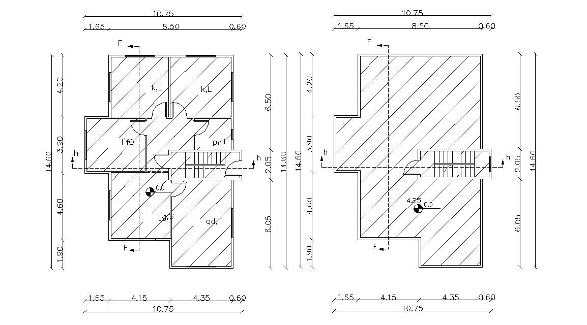
Single storey bungalow of size 1750 square feet architecture floor plan that shows bungalow dimension working set, terrace layout plan, staircase design, section line, door window annotations, and bungalow various other utilities works details. Download architecture bungalow floor plan of size 35' X 50' Feet.

Uploaded by:
akansha
ghatge

