50' X 30' Feet (1500 SQ Feet) Bungalow Layout Plan
Description
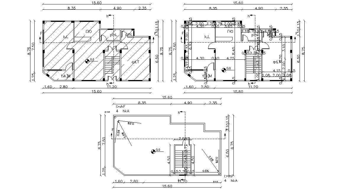
2d CAD Drawing details of residence G+1 bungalow layout architecture plan that shows bungalow working layout plan along with bungalow size, dimension working set, room design, flooring details, terrace layout plan, house floor level, staircase, and various other house amenities details. Download 500 Square Yards residential housing bungalow floor layout CAD plan.

Uploaded by:
akansha
ghatge

